1690万円~で叶える
夢の平屋マイホーム
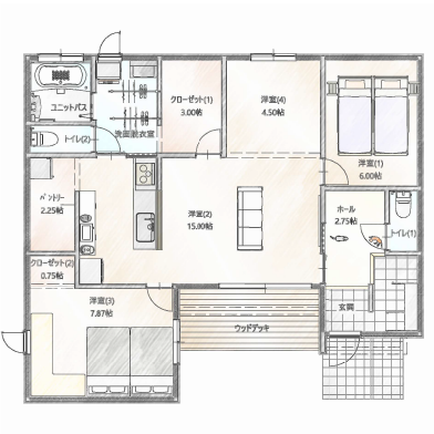
家族全員が快適に過ごせる3LDKの平屋が、2000万円以下で手に入る。シンプルで無駄のない設計ながら、生活の質を犠牲にすることなく、ゆとりある空間を提供。明るいリビングや省エネ設計により、家族全員が快適に過ごせ、ランニングコストも抑えられます。「我慢しないで、シンプルに、でも豊かに暮らしたい」というファミリーに最適な家です。家族と一緒に楽しい時間を過ごせる、機能的で明るい平屋をぜひご検討ください。
お客様実例
平屋専門店アカリエの施工事例
平屋のイベント情報




















